Atualizado 1 de março de 2026 por Sergio A. Loiola
O maior Data Center do Brasil será abastecido com energia renovável, em local estratégico no Nordeste, na Zona de Processamento para Exportação (ZPE) do Complexo Industrial e Portuário do Pecém, no Ceará.
Com investimentos de R$ 210 Bilhões em um Mega Data Center de alta tecnologia, o Norteaste, capitaneado pelo Ceará, acelera sua transformação para a era da Economia Digital e transição energética, hidrogênio verde, fortalecendo a nova industrialização 4.0, Carros elétricos, IoT, robótica e outros, atraindo empresas globais e ampliando sua relevância no cenário nacional, e internacional.

O Ceará e o Nordeste estão se tornado as principais referências nacionais em desenvolvimento industrial, inovação tecnológica e sustentabilidade.
Veremos a seguir como é o projeto do maior Data Center do Brasil, os motivos e a importância para a economia do Nordeste e do país. Em texto, imagens e vídeos.
Qual a importância estratégica de o Brasil começar a ter Data Centers na era da Economia Digital? Comente o significado do Data Center ser localizado próximo a portos e abastecido com energia renovável abundante do Nordeste. Deixe seu comentário no final!
Vídeo 2: BORAVÊ como é um DATA CENTER por dentro
Vídeo 3: Brasil quer data centers com eficiência energética e consumo baixo de água
▶️Clique e SIGA Nature & Space no YouTube: Explore PlayLists Relacionadas ao Site!
LEIA MAIS
Brasil Atrai R$ 2 Tri em Data Center e IA com Energia Verde
Sustentável: China Lançou Data Center de Ia no Fundo do Mar
Compartilhar é Livre. Ajude-nos Citando o Link Deste Artigo!
O Data Center terá foco na exportação de serviços, posicionando o Brasil como polo estratégico para a expansão tecnológica
A big tech chinesa ByteDance, empresa controladora do TikTok, vai investir cerca de R$ 200 bilhões nos próximos dez anos em um megaprojeto de um data center nas imediações do Porto do Pecém, no Ceará, de acordo com o Ministério do Desenvolvimento, Indústria e Comércio.
O empreendimento será o maior data center individual (de um único cliente) do Brasil.

O Data Center terá foco na exportação de serviços, posicionando o Brasil como polo estratégico para a expansão tecnológica da empresa na região.
O projeto envolve setores como energia, logística, construção civil, Tecnologia da Informação e telecomunicações, promovendo aumento da arrecadação local, atração de fornecedores e fortalecimento da indústria regional.
O empreendimento pode servir de modelo para outros investimentos semelhantes no país.
A obra do chamado “data center do TikTok” é tocada pela empresa cearense Casa dos Ventos, referência em energia eólica, e pela brasileira Omnia, braço do fundo de investimentos Pátria para data centers.

As duas empresas devem investir mais de R$ 12 bilhões na estrutura, que será “alugada” e equipada pela ByteDance.
Além da estrutura do data center, devem ser construídos um parque eólico para abastecimento de energia e uma rede de transmissão de alta tensão.
O projeto do data center foi aprovado pelo Conselho Nacional das ZPEs, que garantiu benefícios fiscais ao empreendimento. Também foram aprovados outros quatro data centers da empresa Exportdata.
▶️Clique e SIGA Nature & Space no YouTube: Explore PlayLists Relacionadas ao Site!
Vídeo 1: Por que a big tech chinesa ByteDance, controladora do TikTok investirá R$ 200 bilhões em megaprojeto de data center no Ceará?
LEIA MAIS
Sirius: O Maior Super Laboratório Multidisciplinar do Brasil
Primeiro Supercomputador em Data Center Espacial Orbital
Compartilhar é Livre. Ajude-nos Citando o Link Deste Artigo!
O que são Data Centers? Os centros nervosos por trás da Economia Digital
Data Center é uma instalação física com alta capacidade de refrigeração, de conexão à internet e funcionamento ininterrupto.
A estrutura abriga racks, estruturas retangulares que armazenam processadores responsáveis pelo tráfego e armazenamento de dados de toda a internet.

Esses racks ficam em grandes salas, chamadas data hall, onde empresas de tecnologia mantêm os sistemas que fazem sites e redes sociais funcionarem.
Sempre que um usuário acessa um filme no streaming ou publica um story, os dados passam por um data center.
A capacidade de processamento de dados de um data center é medida em megawatts (MW), unidade usada, geralmente, para se referir a energia.
Ao falar da capacidade em MW, é comum dividir entre potência de TI (disponível exclusivamente para os servidores do cliente) e a potência total (que inclui a energia utilizada nos demais equipamentos).
Devido à ininterrupta atividade de processamento de dados e as grandes quantidades de energia que circulam ali, as máquinas dos data centers precisam de sistemas potentes de refrigeração, que incluem modelos com resfriamento do ar (como o ar-condicionado) ou resfriamentos envolvendo uso de água para dissipar o calor.
▶️Clique e SIGA Nature & Space no YouTube: Explore PlayLists Relacionadas ao Site!
Vídeo 2: BORAVÊ como é um DATA CENTER por dentro
LEIA MAIS
Usina Solar Espacial de 22 GW Suprirá 50 Milhões de Carros
Entenda a TV 3.0: Revolucionária Fusão da Internet Com a TV
Compartilhar é Livre. Ajude-nos Citando o Link Deste Artigo!
Data center do TikTok será o maior do país, adicionado o Ceará como um centro de Economia digital, ao lado de SP e RJ
O Ceará é o terceiro estado em quantidade de data centers e em capacidade instalada, com 13 data centers em operação, atrás apenas de São Paulo (82) e Rio de Janeiro (28), segundo a Associação Brasileira de Data Centers (ABDC).
Data centers regulares têm capacidade total de 10 a 30 MW.
Outra empresa brasileira, a Tecto, inaugurou na Praia do Futuro, em Fortaleza, o maior data center do Nordeste, com uma potência total de 20 MW, iniciando operação com 4 MW de potência de TI.

O “data center do TikTok” prevê dois prédios principais, somando 200 MW de potência de TI, superando toda a capacidade instalada no Ceará de data centers atualmente.
A potência total chega a 300 MW, considerando o consumo dos outros maquinários do prédio. A energia é suficiente para abastecer uma cidade de cerca de meio milhão de habitantes.
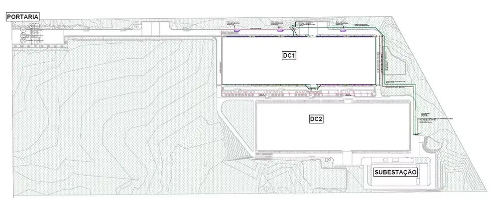
O projeto de estrutura do prédio inclui os dois galpões principais, uma subestação própria de energia, reservatório de água e de combustíveis, uma guarita e uma extensa área de jardim que deve ser utilizada para novas construções em caso de futuras ampliações.
Apesar de ter ficado conhecido como data center do TikTok, o projeto será construído pelas empresas brasileiras Casa dos Ventos e Omnia, que vão “alugar” a estrutura para a ByteDance.
O data center deve ser exclusivo para exportação, processando dados para usuários de fora do país. Ele será instalado na ZPE do Pecém, entre Caucaia e São Gonçalo do Amarante, na Região Metropolitana de Fortaleza.
O equipamento vai ocupar uma área de cerca de 68 hectares (ou 95 campos de futebol), às margens da CE-348, no território do município de Caucaia, a cerca de 2 quilômetros da Lagoa do Cauípe, importante corpo hídrico da região.
LEIA MAIS
Maritaca: IA Criada na Unicamp, Brasil, Tem Alto Desempenho
Drex, A Moeda Digital do Brasil: Revolução na Economia
Compartilhar é Livre. Ajude-nos Citando o Link Deste Artigo!
Sistema de refrigeração em ciclo fechado possibilita um baixíssimo consumo de água
Segundo a Omnia, o projeto vai utilizar o chamado sistema de refrigeração em ciclo fechado, no qual a água utilizada absorve o calor das máquinas e depois, em contato com ar, ela mesma é resfriada e volta novamente a passar pelas máquinas para absorver mais calor.
Segundo a empresa, o modelo fechado “possibilita um baixíssimo consumo de água 30m³, equivalente a cerca de 70 residências médias”, ou o correspondente a apenas 0,045% da demanda residencial total do município de Caucaia.

A Omnia disse que a maior parte do consumo de água será para uso humano e predial, e “apenas cerca de 10% desse total utilizado para a refrigeração”.
O Conselho Nacional das ZPEs (CZPE) já concedeu ao projeto os benefícios fiscais usualmente concedidos às empresas exportadoras instaladas em ZPEs.
O conselho estima que, em operação, o data center vai gerar 550 empregos diretos e indiretos. Nas obras de infraestrutura, 3.800.
O sinal verde do CZPE veio com algumas condicionantes: todo data center instalado em uma ZPE, como o do TikTok, é obrigado a utilizar energias renováveis.
As empresas devem construir um novo parque eólico e uma rede de transmissão de alta tensão, atividades especializadas da Casa dos Ventos.
Vídeo 3: Brasil quer data centers com eficiência energética e consumo baixo de água
LEIA MAIS
Primeiro Tradutor de Libras Simultâneo Com IA, Brasil
IA Com Luz Faz Cálculos Simultâneos Ultra Veloz Gastando 100 Vezes Menos Energia
Compartilhar é Livre. Ajude-nos Citando o Link Deste Artigo!
O projeto é voltado exclusivo para a exportação de dados, a posição geográfica facilita ofertar serviços na UE, EUA e África, e outros.
Segundo o professor de computação e rede de computadores da Universidade Federal do Ceará, João Marcelo Uchôa, os data centers já são conectados entre si para formar uma rede global de distribuição de conteúdo e serviços, por isso um usuário do Brasil consegue acessar arquivos hospedados na Europa.

No entanto, questões como a distância e mesmo a expansão fazem com que as grandes empresas de tecnologia procurem investir em data centers em diversos países, garantindo a melhoria do serviço e o oferecimento de novos serviços aos consumidores.
No caso dos voltados para exportação de dados, a posição geográfica pode ajudar a alcançar e melhorar os serviços em novos mercados.
“Se eu quero aumentar a minha presença no Brasil, eu vou ter muitos brasileiros fazendo o upload de vídeos […], esse vídeo, se eu for colocar do Brasil para um data center em Miami ou um data center na Europa, essa distância, apesar de ser uma rede muito rápida, apesar de ser fibra ótica, sinal de luz, tudo isso aí, essa distância causa o que a gente chama de um lag, um atraso”, explica o docente.
“O Ceará está a uma distância próxima da África, está a uma distância próxima da América do Norte, da Europa. Então, ao colocar o data center no Ceará, eu estou diminuindo o lag, a latência, para o Brasil, mas também estou diminuindo a latência para a África, que é um mercado que está aquecendo muito”
▶️Clique e SIGA Nature & Space no YouTube: Explore PlayLists Relacionadas ao Site!
Bibliografia
Curadoria Técnica e Análise Audiovisual: Conteúdo Bibliográfico e Audiovisual Selecionado e Validado por Dr. Sergio Almeida Loiola – CV Lattes/CNPq.
G1
Click Petróleo e Gas
Análise Audiovisual
Vídeo 1- Passo a Passo Empreendedor: Por que a big tech chinesa ByteDance, controladora do TikTok investirá R$ 200 bilhões em megaprojeto de data center no Ceará?
Vídeo 2- Manual do Mundo: BORAVÊ como é um DATA CENTER por dentro
Vídeo 3- UOL: Brasil quer data centers com eficiência energética e consumo baixo de água
Política de Uso
Compartilhar é Livre. Ajude-nos Citando o Link Deste Artigo!
Maior Data Center do Brasil Será Abastecido Com Energia Renovável em Local Estratégico no Nordeste


















